Dettagli immobile

Villa Classe A con Piscina e Giardino – Zona Viale Borri

via Santa Maria Maddalena 43, 21100 - Varese

Descrizione dell’Immobile Situata in una posizione privilegiata che coniuga la massima privacy e silenziosità alla comodità dei servizi cittadini, proponiamo in vendita una prestigiosa villa singola edificata nel 2012 e mantenuta in condizioni impeccabili, pari al nuovo. L’abitazione si distingue per l’architettura moderna, l’efficienza energetica in Classe A e l’eccellente esposizione solare che illumina ogni ambiente durante l’intera giornata. Piano Terra: La convivialità e il relax L’ingresso apre su una scenografica zona living di ampie dimensioni. La cucina abitabile, spaziosa e funzionale, è separata dal soggiorno da un’elegante doppia porta a scomparsa, ideale per creare un open-space fluido. Outdoor: La cucina affaccia su un portico a sud (perfetto per colazioni al sole), mentre il soggiorno si proietta su un portico a ovest, ideale per aperitivi al tramonto con vista diretta sulla splendida piscina. Completano il piano un bagno di servizio e un comodo locale guardaroba. Piano Primo: La zona notte Una scala di design conduce al primo piano, dedicato al riposo: Master Bedroom: camera padronale dotata di bagno privato e cabina armadio dedicata. Altre Camere: due ulteriori camere da letto di metratura generosa. Terrazzi: accesso diretto a un gradevole terrazzino dalla camera principale e da una delle camere doppie. Secondo bagno completo a servizio del piano. Piano Interrato e Pertinenze La proprietà dispone di un ampio box auto doppio, locale tecnico di ultima generazione e una zona sgombero versatile, ideale come taverna, palestra o zona hobby. Esterni e Plus La villa è circondata da un giardino pianeggiante di circa 1.100 mq, ideale per la vita all’aria aperta.

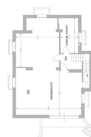
Planimetrie

Video

Agente di contatto

Img

Michele Chisena

Agente

Telefono ufficio +39 0332 46 28 68

E-mail
Scrivici

Principali caratteristiche

Generale
  • Area: 322MQ
  • Anno : 2012
  • Stato costruzione: nuovo
  • Stato Manutenzione: nuovo
  • libero
  • Finiture: signorile
  • Classe energetica : A2
  • IPE : 63.76
  • Riscaldamento : autonomo
Interni
  • Locali: 4
  • Camera da letto: 3
  • Cucina abitabile
  • Bagni: 3
  • Altre camere: 1
  • Porta Blindata
Esterno
  • N° terrazzi: 1
  • Box auto doppio
  • Cancello elettrico
  • Videocitofono

Sei interessato?

Compila il form, ti risponderemo entro 24 ore.





    Contatta ora
    Officine Immobiliari